Trilocale in vendita

Afragola, Corso Giuseppe Garibaldi - Afragola Sant'Antonio
€ 175.000
3 locali 3 locali
112 Mq 112 Mq
2 bagni 2 bagni

Trilocale in vendita

Afragola, Corso Giuseppe Garibaldi - Afragola Sant'Antonio

Descrizione annuncio

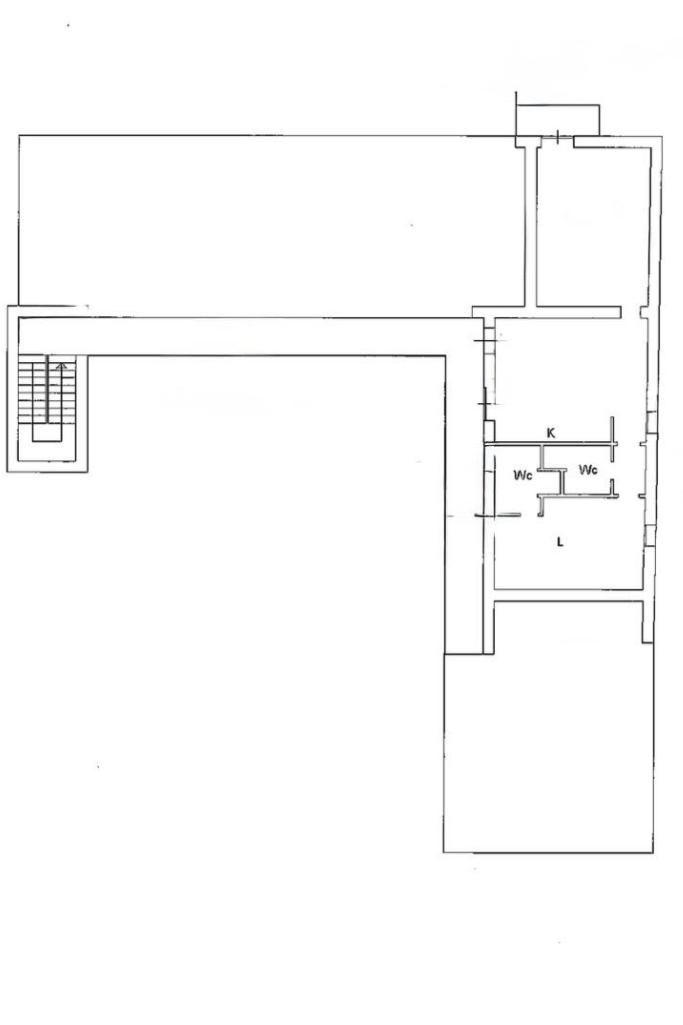
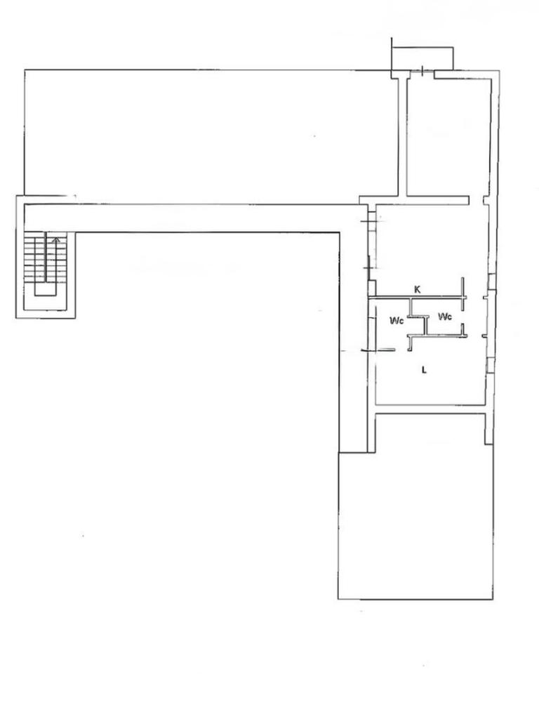
Nel cuore di Afragola, proponiamo in vendita un appartamento di 112 mq situato al secondo e ultimo piano.

L'immobile, si trova in buono stato interno e offre una disposizione funzionale degli spazi. La doppia esposizione garantisce luminosità e ventilazione naturale in tutti gli ambienti. L'appartamento è composto da tre locali, tra cui una camera da letto con bagno privato, oltre a un secondo bagno per gli ospiti.

La posizione è strategica, a pochi passi da Corso Garibaldi, una delle principali arterie della zona, ricca di servizi e collegamenti.

Completa la proprietà un comodo posto auto auto, ideale per chi cerca praticità e sicurezza. Questa soluzione abitativa rappresenta un'opportunità interessante per chi desidera vivere in un contesto tranquillo senza rinunciare alla vicinanza ai servizi cittadini.

PER MAGGIORI INFO CONTATTATECI ALLO 0818513261

Mostra tutto

Nelle vicinanze

Trasporto pubblico Trasporto pubblico
stazione di Casoria-Afragola
stazione di Casoria-Afragola
1,2 Km
Casoria-Afragola
Casoria-Afragola
1,2 Km
Stazionamento autobus CTP
Stazionamento autobus CTP
1,2 Km
Fermata via Giuseppe Mazzini
Fermata via Giuseppe Mazzini
1,2 Km
Ricariche auto elettriche Ricariche auto elettriche
IKEA Napoli
1,5 Km
Scuole Scuole
IS "A.Torrente"
470 m
Scuola elementare "Alessandro Marconi"
500 m
Scuole
600 m
I.T.C. Emilio Sereni
920 m
Istituto Brando Casoria
1,6 Km
Farmacia Farmacia
Farmacia Liguori
430 m
Farmacia Sant'Antonio dei dottori A. & M Della Camera
480 m
Farmacia Squillante
520 m
Farmacia De Vita
630 m
Farmacia
840 m
Ospedali Ospedali
Ospedale Santa Maria della Pietà
1,7 Km
Supermercati Supermercati
Conad
1,1 Km
Euro Spin
1,3 Km
MegaMercato - SISA
2,1 Km
SISA - MegaMercato
2,4 Km
Decò
2,5 Km
Negozi Negozi
Negozi
370 m
Bar Bar
Bar Bassolino
340 m
Bar
700 m
Nero fumo
950 m
Bar Fimiani
960 m
Business Caffè
1,1 Km
Ristoranti Ristoranti
Ristoranti
20 m
N'dringte n'dra
250 m
Pizza Village
350 m
Coccodè
360 m
Muntaniello
740 m
Mostra tutto

Caratteristiche

Rif.:
61195503
Piano:
2 di 2 (Piano medio)
Posti auto:
1
Balconi:
2
Camere da letto:
2
Arredamento:
Parziale
Mostra tutto
Prezzo Prezzo
€ 175.000
Rata mutuo Rata mutuo
€ 825 / mese
Spese annue Spese annue
€ 0
Proponi il tuo prezzoProponi il tuo prezzo

Classe Energetica

E
E
E
E
E
E
E
E
E
EP globale non rinnovabile:
0.00 kW h/m² anno
EP globale rinnovabile:
0.00 kW h/m² anno
EP invernale del fabbricato:
EP estiva del fabbricato:
Anno di costruzione:
1970
Riscaldamento:
Autonomo
Tipo impianto:
Ad aria
Tipo alimentazione:
Aria

Ti interessa visionare l'immobile?

Fissa un appuntamento  Fissa un appuntamento

Richiedi informazioni

Clicca su Leggi per aprire l'informativa
* Questi campi sono obbligatori

Calcola il tuo mutuo

Semplice e senza impegno
Anticipo

( % )
Mutuo

( % )

pochi semplici passi

inserisci i tuoi dati
Questionario completato
Grazie per aver richiesto un appuntamento senza impegno con un nostro Consulente del Credito e Assicurativo.

Hai inserito correttamente tutti i dati necessari e a breve riceverai una e-mail con un link da convalidare per inviare i tuoi dati.
Affiliato
Studio Afragola Srl
P.zza Gianturco, 4 80021 Afragola (NA)

Il nostro staff


  • Raffaele Auletta
    Affiliato

  • Martina Di Palo
    Collaboratrice

  • Giuseppe Purificato
    Affiliato

  • Vincenzo Raia
    Collaboratore
P.zza Gianturco, 4 80021 Afragola (NA)
Zona: Afragola
Mostra su mappa
Affiliato
Studio Afragola Srl
P.zza Gianturco, 4 80021 Afragola (NA)

2026 Tecnocasa Franchising S.p.A. - P. IVA 08365160152 - Via Monte Bianco 60/A 20089 Rozzano (MI). Ogni agenzia ha un proprio titolare ed è autonoma. Privacy policy | Policy utilizzo | Cookie policy